


Spatiu comercial in centrul vechi, acces stradal!
Cluj-Napoca, Central
2.600€ + TVA
Camere
2
Suprafata utila
167 mp
Suprafata construita
176 mp
An constructie
2000
- ID:P146475
- Nr. camere:2
- S. utila:167.00 mp
- S. construita:176.00 mp
- S. vitrina:5.00 m
- Comp.:Open space
- Nr. bai:2
- An constructie:2000
- Structura rezistenta:Caramida
- Regim inaltime:S+P+3
Descriere
Sigma imobiliare ofera spre inchiriere un spatiu comercial situat in zona centrala, in imediata apropiere a Strazii Eroilor, cu acces direct din strada si vitrina.
Proprietatea este dispusa pe doua niveluri si are urmatoarea compartimentare:
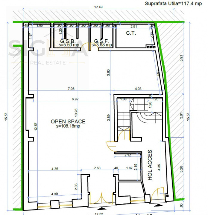
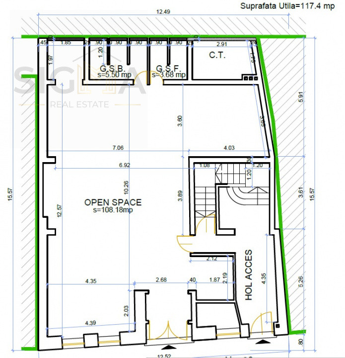
Parter – suprafata utila de 117 mp, compus dintr-un spatiu open-space generos si doua grupuri sanitare;
Subsol – suprafata utila de 50 mp, compus din hol, spatiu pentru depozitare si o camera separata.
Spatiul este finisat, se preda nemobilat si beneficiaza de: curent trifazic, incalzire prin centrala imobilului, acces direct din strada, vitrina la strada, ideala pentru activitati comerciale.
In Cartea Funciara, spatiul are destinatia de spatiu comercial.
Nu dispune de locuri de parcare proprii.
Pretul afisat nu include TVA.
Datorita pozitiei centrale spatiul este potrivit pentru showroom-uri, cabinete, birouri de reprezentanta sau diverse activitati comerciale.
Citeste mai mult
Proprietatea este dispusa pe doua niveluri si are urmatoarea compartimentare:
Parter – suprafata utila de 117 mp, compus dintr-un spatiu open-space generos si doua grupuri sanitare;
Subsol – suprafata utila de 50 mp, compus din hol, spatiu pentru depozitare si o camera separata.
Spatiul este finisat, se preda nemobilat si beneficiaza de: curent trifazic, incalzire prin centrala imobilului, acces direct din strada, vitrina la strada, ideala pentru activitati comerciale.
In Cartea Funciara, spatiul are destinatia de spatiu comercial.
Nu dispune de locuri de parcare proprii.
Pretul afisat nu include TVA.
Datorita pozitiei centrale spatiul este potrivit pentru showroom-uri, cabinete, birouri de reprezentanta sau diverse activitati comerciale.
Specificatii
Curent
Apa
Canalizare
Gaz
Curent trifazic
Acces internet
Fibra optica
Centrala imobil
Calorifere
Aer conditionat
Bloc izolat termic
Vopsea lavabila
Faianta
Gresie
Ferestre Termopan
Apometre
Contor gaz
Nemobilat
Interfon
Sergiu Marina
0750175173
Esti interesat de aceasta proprietate ?